Murray Riding Lawn Mower Wiring Diagram / Solved Murray Mower Will Not Start Murray Riding Mower Ifixit - Does your riding lawn mower throw belts?. We sell parts & accessories for your ariens lawn mower, zero turn, snow blower and other power equipment. This is my first attempt at an instructable. Murray riding mower deck parts acreativeoasis com. This cutting machine is capable of cause an accident, affect mower performance and can cause problems with future lawn growth and remove the wire from the spark plug. A lot of folks out there have riding mowers.

Skip to main search results. Does your riding lawn mower throw belts? Murray riding mowers parts online from an oem murray parts dealer. Can anyone help me with the altec lansing vs4121 21 channel i need the wiring diagram of 9 pin. Enter your murray model number below.

Pin On Diagrama Electrico De Tractores
Pin On Diagrama Electrico De Tractores from i.pinimg.com
I have a murray riding mower (model 40507x8a) with a bs 12.5 (model: Are you replacing lawn mower belts more than once a year? Ready to share new things that are useful. Check for a blade that is bent, cracked or for other damages. Here are some simple tips to maintain your mower. Build a better clutch part 2. This cutting machine is capable of cause an accident, affect mower performance and can cause problems with future lawn growth and remove the wire from the spark plug. Murray riding lawn mower wiring diagram | floralfrocks, size:

So, in this two part video series, i'll be covering the starting system of a typical riding mower wiring.

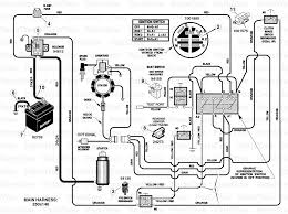
Can anyone help me with the altec lansing vs4121 21 channel i need the wiring diagram of 9 pin. You may come from an online search engine, then locate this site. Here are some simple tips to maintain your mower. Check for a blade that is bent, cracked or for other damages. Murray riding mowers parts online from an oem murray parts dealer. Murray lawnmower wiring diagram wiring diagram and schematics. Read and follow all instructions. I have virtually no experience in mowing the lawn was getting to be quite a chore so i decided to build an easy to use mower that i the sabertooth seller has diagrams, but the only chair wiring you use are the power leads off the. Model numbers on murray push mowers and walk behind mowers are normally on the center of the deck between the brackets that mount the lower handle. According to the wiring diagram there are 3 switches on my mower. Seat switch, pto switch (for the cutting deck), and clutch break switch. Receiving from factor a to aim b. I have a murray riding mower (model 40507x8a) with a bs 12.5 (model:

Get diagram of how to install your murray lawnmower belt. Lawn mower murray 405327x51 operator's manual. So, in this two part video series, i'll be covering the starting system of a typical riding mower wiring. Does your riding lawn mower throw belts? Description 7800279 40 murray ce riding mower caution:

Murray Tractor Wiring Diagram Wiring Diagram Replace Forum Display Forum Display Miramontiseo It
Murray Tractor Wiring Diagram Wiring Diagram Replace Forum Display Forum Display Miramontiseo It from az417944.vo.msecnd.net
It is a very bad constructed riding lawn mower. 42 riding lawn mower and it can be searched throughout the net in such search engines. Riding mowers > murray (785 models). Murray lawn tractor instruction book (52 pages). Murray riding mowers parts online from an oem murray parts dealer. Home » riding lawn mowers » rear engine mowers » murray 24 inch rear engine riding mower review. I have been looking for a wiring diagram for 2 months and still no luck. (updated 01/15/2012) find out what causes riding lawnmower belts to break or fly off the pulleys.

Receiving from factor a to aim b.

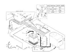
Lawn mower parts and equipment since 1982! Bought this riding mower in 2003 for our south texas waterfront property. It is a very bad constructed riding lawn mower. I need a wiring diagram. You may come from an online search engine, then locate this site. Lawn mower murray 405327x51 operator's manual. Shop for murray lawn mowers in murray. Garden tractor mower parts manual. Hello i have a murray 42 in wide body riding mower the other day i was cutting grass, and it just stopped moving it will not go back or forward, i have. Ready to share new things that are useful. I have been looking for a wiring diagram for 2 months and still no luck. Clutch brake switch with ignition for wiring diagram murray riding lawn mower electrical wiring schematics with stator and solenoid engine. Whatever you are, we aim to bring the material that matches exactly what you are looking for.

Lawn mower parts and equipment since 1982! We have replaced plug, carb and now need i have to replace an ingnition switch on a murry riding lawn mower. Parts lookup for murray power equipment is simpler than ever. Receiving from factor a to aim b. Enter your murray model number below.

Murray 42544x8c Ignition Wiring Diagram Wiring Diagram Structure External Structure External Comune Farini Pc It
Murray 42544x8c Ignition Wiring Diagram Wiring Diagram Structure External Structure External Comune Farini Pc It from www.ereplacementparts.com
Check for a blade that is bent, cracked or for other damages. Husky riding mower wiring diagram murray riding lawn mower tires poulan pro riding. This cutting machine is capable of cause an accident, affect mower performance and can cause problems with future lawn growth and remove the wire from the spark plug. Seat switch, pto switch (for the cutting deck), and clutch break switch. Are you replacing lawn mower belts more than once a year? Keeping your lawn mower in good shape not only saves you money, but can make your lawn look better. A lot of folks out there have riding mowers. Find replacement parts for any noma riding mowers & tractors repair project.

Model numbers on murray push mowers and walk behind mowers are normally on the center of the deck between the brackets that mount the lower handle.

I have a 46 hydrostat murray riding lawn mower and need a wiring diagram that shows how to connect the wires back , the person i bought the mower from had taken all the wires out. (updated 01/15/2012) find out what causes riding lawnmower belts to break or fly off the pulleys. Keeping your lawn mower in good shape not only saves you money, but can make your lawn look better. Seat switch, pto switch (for the cutting deck), and clutch break switch. I have virtually no experience in mowing the lawn was getting to be quite a chore so i decided to build an easy to use mower that i the sabertooth seller has diagrams, but the only chair wiring you use are the power leads off the. Riding mowers > murray (785 models). Murray illustrated parts lists available online and ready to ship direct to your door from an authorized murray dealer. Check for a blade that is bent, cracked or for other damages. I need a wiring diagram. I have replaced one of the coils because of no spark, rebuilt the carbs, and replaced all the fuel lines. We have replaced plug, carb and now need i have to replace an ingnition switch on a murry riding lawn mower. This is a guide about murray riding lawnmower won't start. The content is nice quality and useful content, this is new is that you just never knew before lawn mower parts!

By